Description du bien







MAISON B ( à droite sur le plan)













































🏡 Carcassonne – LOCATION/ACCESSION – Maisons T4 avec garage, jardin & terrasse – 200 000 €
Au cœur de la Bastide Saint-Louis, à deux pas des commerces, écoles et transports, deux maisons modernes vous attendent.
—
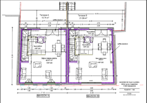
🏠 Maison A – 87,38 m²
Rez-de-chaussée
- 🚗 Garage : 42,41 m²
- 🌿 Jardin : 41,77 m² sans vis-à-vis
1er étage
- 🛋️ Séjour + cuisine ouverte : 42,41 m²
- ☀️ Terrasse : 16,74 m²
2e étage
- 🛏️ 3 chambres : 10,17 / 10,19 / 9,42 m²
- 📦 Placards intégrés : 0,45 / 0,62 / 0,62 m²
- 🚿 Salle d’eau : 3,71 m²
- 🚻 WC séparé : 1,36 m²
—
🏠 Maison B – 84,65 m²
Rez-de-chaussée
- 🚗 Garage : 40,88 m²
- 🌿 Jardin : 50 m² sans vis-à-vis
1er étage
- 🛋️ Séjour + cuisine ouverte : 40,99 m²
- ☀️ Terrasse : 21,09 m²
2e étage
- 🛏️ 3 chambres : 9,53 / 9,30 / 9,51 m²
- 📦 Placards intégrés : 0,37 / 0,78 / 0,78 m²
- 🚿 Salle d’eau : 4,38 m²
- 🚻 WC séparé : 1,52 m²
—
⚙️ Équipements & confort
- ♻️ Pompe à chaleur réversible
- 🔥 Chauffage électrique dans les chambres
- 💧 Cumulus thermodynamique
- 🗝️ Livraison clé en main : décembre 2025
—
💰 Avantages location accession
- ⏳ 15 ans d’exonération de taxe foncière
- ✍️ Frais de notaire réduits à 3 %
- 💸 Éligible au Prêt à Taux Zéro (PTZ)
- 🏷️ TVA réduite à 5,5 %
- 🏠 Garantie de rachat et de relogement
—
Ne tardez plus à découvrir cette belle opportunité !
📞 Contactez nous dès maintenant pour une simulation financière personnalisée et vérifier votre éligibilité !
Documents